Строительство премиум домов
из клееного бруса
Строительство премиум домов
из клееного бруса
Фахверк из клееного бруса

GLF-360

Срок строительства 3-6 месяцев
Если начать строить этот дом сейчас, мы построим его к сентябрю 2022
Реализовано "под ключ"

ДОМ ФАХВЕРК РЕАЛИЗОВАН НАМИ ПОД КЛЮЧ

Размер: (16.6 х 13.6 ) м
Стоимость от:
13 500 000 руб
3
4
Двухэтажный дом с мансардой
360 кв.м.
Срок строительства:
от 3-x месяцев
Внутренняя отделка

Строительство и монтаж

Инженерные системы
Индивидуальный домокомплект
Индивидуальное проектирование

240/320 х 240/320 мм
Каркасно-балочная схема с несущими стойками
сечением

Балки с сечением шириной 120 мм высотой

Высокая степень огнестойкости
Здание предназначено для круглогодичной эксплуатации

290 х 290 мм
Материал стен основной части дома - клееный брус сечением


Проект выполнен в соответствии с нормами и стандартами РФ

Цоколь облицовывается искуственным камнем по технологии мокрого фасада.
Фундамент монолитный жб
Перекрытие 1 этажа - по монолитной плите
Покрытие 2 этажа - стяжка по деревянным балкам
Кровля - скатная утепленная, покрытие гибкая черепица
Наружные и внутренние стены утепляются минераловатными плитами "Rockwool" с последующей отделкой

Напольные покрытия - в мокрых зонах керамическая плитка с устройством «теплого пола».

ПРОЕКТ ФАСАДА

Собственное автоматизированное производство и контроль качества на каждом этапе позволили нам использовать лучшие материалы и технологии для строительства дома

ТЕХНОЛОГИИ

01
Cобственная технология производства клееного бруса

КЛЕЕНЫЙ БРУС

02
Дом выдержит температуру
от +40°С до -50°С

ТЕПЛО-
ИЗОЛЯЦИЯ

03
Легкий несущий каркас, панели, заполняющие пространство. Повышенная прочность узловых соединений. Небольшой срок возведения.

КАРКАСНАЯ СИСТЕМА

Полный цикл производства – от заготовки леса до выпуска готовой продукции.
04
Для производства бруса использован пиломатериал из Северных регионов нашей страны
ФАКТЫ

ПЛАНИРОВКА

1 этаж
Кухня
Гостиная
Бойлерная
Кладовая
Сауна
Раздевалка
Душевая
Туалет
Холл
Комната
Гардеробная
Тамбур
Площадь жилая
Площадь общая


26,8
40,2
5,9
5,9
5,9
5,9
12,4
5,9
32,8
19,2
6,4
6,4
173,7
188,9

Жилая площадь дома - 332,8
Общая площадь дома - 367,8

ПЛАНИРОВКА

1 этаж
Кухня
Гостиная
Бойлерная
Кладовая
Сауна
Раздевалка
Душевая
Туалет
Холл
Комната
Гардеробная
Тамбур
Площадь жилая
Площадь общая


26,8
40,2
5,9
5,9
5,9
5,9
12,4
5,9
32,8
19,2
6,4
6,4
173,7
188,9

Жилая площадь дома - 332,8
Общая площадь дома - 367,8
2 этаж
Комната
Санузел
Гардероб
Комната
Туалет
Комната
Холл
Гостиная
Техпомещение
Балкон
Балкон
Жилая площадь
Общая площадь
25,5
9,2
5,9
22,1
5,9
18,8
32,4
25,9
13,4
9,9
9,9
159,1
178,9
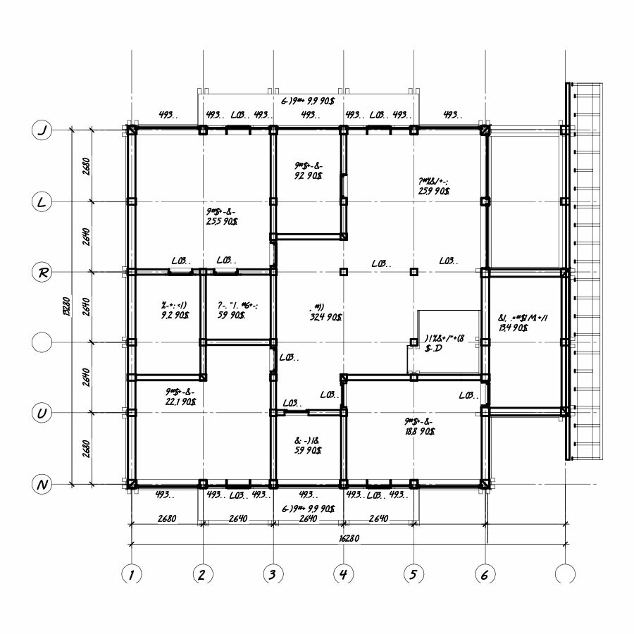
2 этаж
Комната
Санузел
Гардероб
Комната
Туалет
Комната
Холл
Гостиная
Техпомещение
Балкон
Балкон
Жилая площадь
Общая площадь
25,5
9,2
5,9
22,1
5,9
18,8
32,4
25,9
13,4
9,9
9,9
159,1
178,9

ЭТАПЫ СТРОИТЕЛЬСТВА

ЦЕНЫ НА СТРОИТЕЛЬСТВО

КОМПлектация №1

"под ключ"
от 69 000 руб.м2


комплектация №2

"под чистовую отделку"
от 40 000 руб.м2



КОМПЛЕКТАЦИИ

"под ключ"

от 69 000 руб.м2

"под чистовую отделку"

от 40 000 руб.м2

ФУНДАМЕНТ:



  • Монолитная железобетонная плита
СТЕНОВОЙ КОМПЛЕКТ:

  • Каркас фахверковый из бруса выбранного сечения
  • Система крепежа
  • Опорные колонны, несущие балки, стропильная система

ПЕРЕКРЫТИЯ:



  • Балки перекрытия
  • Система крепежа

КРОВЛЯ:



  • Стропильная система
  • Система крепежа
  • Финишное покрытие кровли, согласно проекта
КРОВЛЯ:

  • Водосточная система

УТЕПЛЕНИЕ:



  • Утепление кровли 200мм, паро-гидроизоляция
  • Утепление внешних стен 200 мм, паро-гидроизоляция

УТЕПЛЕНИЕ:



  • Утепление перекрытий 200мм, паро-гидроизоляции

ОТДЕЛКА:


  • Облицовка внешних стен японскими фиброцементными панелями (цвет и фактура на выбор)

ОТДЕЛКА:


  • Шлифовка и покраска каркаса внутри и снаружи
  • Устройство внутренних каркасных перегородок согласно проекта
  • Устройство чистовых полов
  • Устройство чистовых потолков
  • Межкомнатные дверные блоки с наличниками
  • Лестница согласно проекта
  • Облицовка цоколя
  • Подшив свесов кровли

ИНЖЕНЕРНЫЕ СИСТЕМЫ:


  • Электрика
  • Сантехника
  • Канализация
  • Отопление
  • Водоснабжение
  • Вентиляция
  • Котельная
  • Система «умный дом»
КОМПЛЕКТАЦИИ

№1

№2

ФУНДАМЕНТ:



  • Монолитная железобетонная плита
СТЕНОВОЙ КОМПЛЕКТ:

  • Каркас фахверковый из бруса выбранного сечения
  • Система крепежа
  • Опорные колонны, несущие балки, стропильная система

ПЕРЕКРЫТИЯ:



  • Балки перекрытия
  • Система крепежа

КРОВЛЯ:



  • Стропильная система
  • Система крепежа
  • Финишное покрытие кровли
КРОВЛЯ:

  • Водосточная система

УТЕПЛЕНИЕ:



  • Утепление кровли 200мм, паро-гидроизоляция
  • Утепление внешних стен 200мм, паро-гидроизоляция

УТЕПЛЕНИЕ:



  • Утепление перекрытий 200мм, паро-гидроизоляции

ОТДЕЛКА:


  • Облицовка внешних стен японскими фиброцементными панелями (цвет и фактура на выбор)

ОТДЕЛКА:


  • Шлифовка и покраска каркаса внутри и снаружи
  • Устройство внутренних каркасных перегородок согласно проекта
  • Устройство чистовых полов
  • Устройство чистовых потолков
  • Межкомнатные дверные блоки с наличниками
  • Лестница согласно проекта
  • Облицовка цоколя
  • Подшив свесов кровли

ИНЖЕНЕРНЫЕ СИСТЕМЫ:


  • Электрика
  • Сантехника
  • Канализация
  • Отопление
  • Водоснабжение
  • Вентиляция
  • Котельная
  • Система «умный дом»
ОСТАЛИСЬ ВОПРОСЫ ПО ПРОЕКТУ?
Оставьте заявку – специалисты позвонят в указанное время.
Собственного производства клееного бруса, оснащенное высокоточным автоматизированным оборудованием из Италии и Германии.
Удивительные, словно пришедшие из сказки, аккуратные дома, в архитектуре которых все исполнено с поразительной лаконичностью и гармонией
Производственно-строительная компания “Клевер уДачи” работает для тех, кто хочет подчеркнуть свою индивидуальность и рассказать о своем характере и вкусе уже самим видом постройки
50 000 кв.м.

Строительство любого дома начинайте с эскизного проекта

ЗАПОЛНИТЕ АНКЕТУ НИЖЕ
И получите расчет стоимости и эскизный проект от архитектора из 5 документов БЕСПЛАТНО
на поспешных решениях и конструкторской документации
СЭКОНОМЬТЕ ДО 300 000 ₽
Генплан участка

Смета на работы и материалы с погрешностью 2-3%

Расчет стоимости окон

Фасад дома

Планировка дома

При заключении договора на строительство - проектируем бесплатно

УСЛОВИЯ СОТРУДНИЧЕСТВА

01
При расчёте стоимости строительства получаете детальную смету (на работы и материалы)
Независимый технадзор
Предоставляем независимый технический надзор, который обеспечит Ваше спокойствие и снизит наши риски по гарантийному обслуживанию.


ОСТАЛИСЬ ВОПРОСЫ ПО ПРОЕКТУ?
Постоплатная система расчета на строительство дома.
Вы платите только за фактически принятые Вами этапы работ.

02
03
Гарантия 10 лет
Строгое соблюдение гарантийных обязательств на выполненные работы и материалы.

Инженер технадзора каждый день контролирует строительство и отвечает перед вами головой
C точностью до дня вы будете понимать, насколько мы опережаем график строительства

Замеры и контроль, чтобы дом на 100% соответствовал плану и нормативам

02
01
Один раз в 7-10 дней
выезд на объект

КОНТРОЛЬ

Каждые 2-3 дня
фото и видео
со стройплощадки

Задать вопрос напрямую инженеру
СРЕДНЕЕ ВРЕМЯ ОТВЕТА: 24 СЕКУНДЫ

ОТВЕТЫ НА ЧАСТЫЕ ВОПРОСЫ

КОНТАКТЫ
zakaz@kleverudachi.ru

Люберцы, ул. Привольная, д. 70

СРЕДНЕЕ ВРЕМЯ ОТВЕТА: 24 СЕКУНДЫ

Задайте вопрос напрямую инженеру:

Мы ценим Ваше время, поэтому наши специалисты готовы приехать в удобное Вам время и место для обсуждения всех деталей предстоящего проекта.